
BASTION
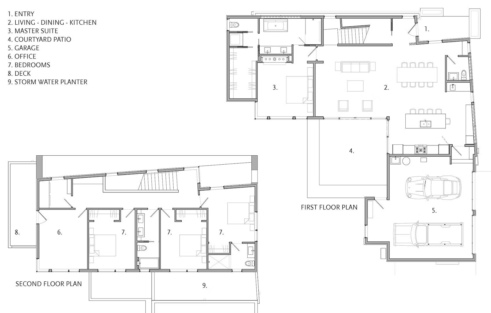
The Bastion House transforms a site once deemed unbuildable into a stunning architectural achievement, inspired by the courtyard typology, the home seamlessly blends traditional and modern elements. Positioned adjacent to an environmental overlay zone that restricts buildable space, the design maximizes the site’s potential with a thoughtfully crafted 2,800-square-foot residence. At its heart, a courtyard patio opens toward the surrounding greenery, creating a seamless connection to nature. On the street side, a striking floating tube form captures attention and guides visitors to a dynamic corner entry, balancing bold design with a harmonious integration into its unique setting.
Portland, OR
Architect Steelhead | Architecture














