
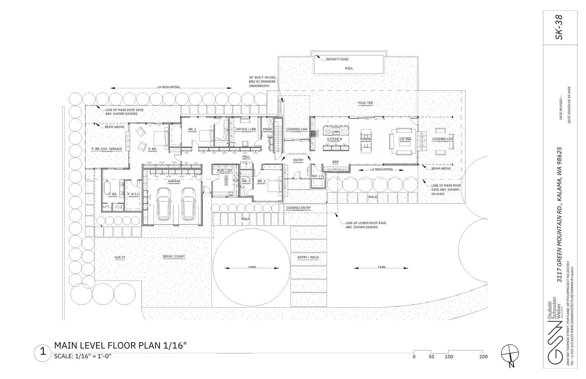
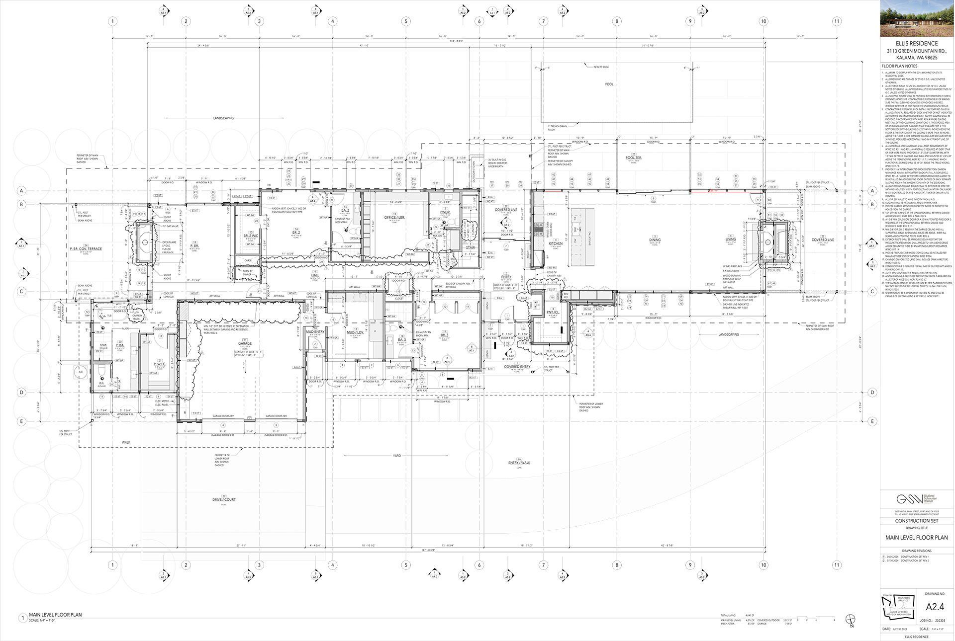
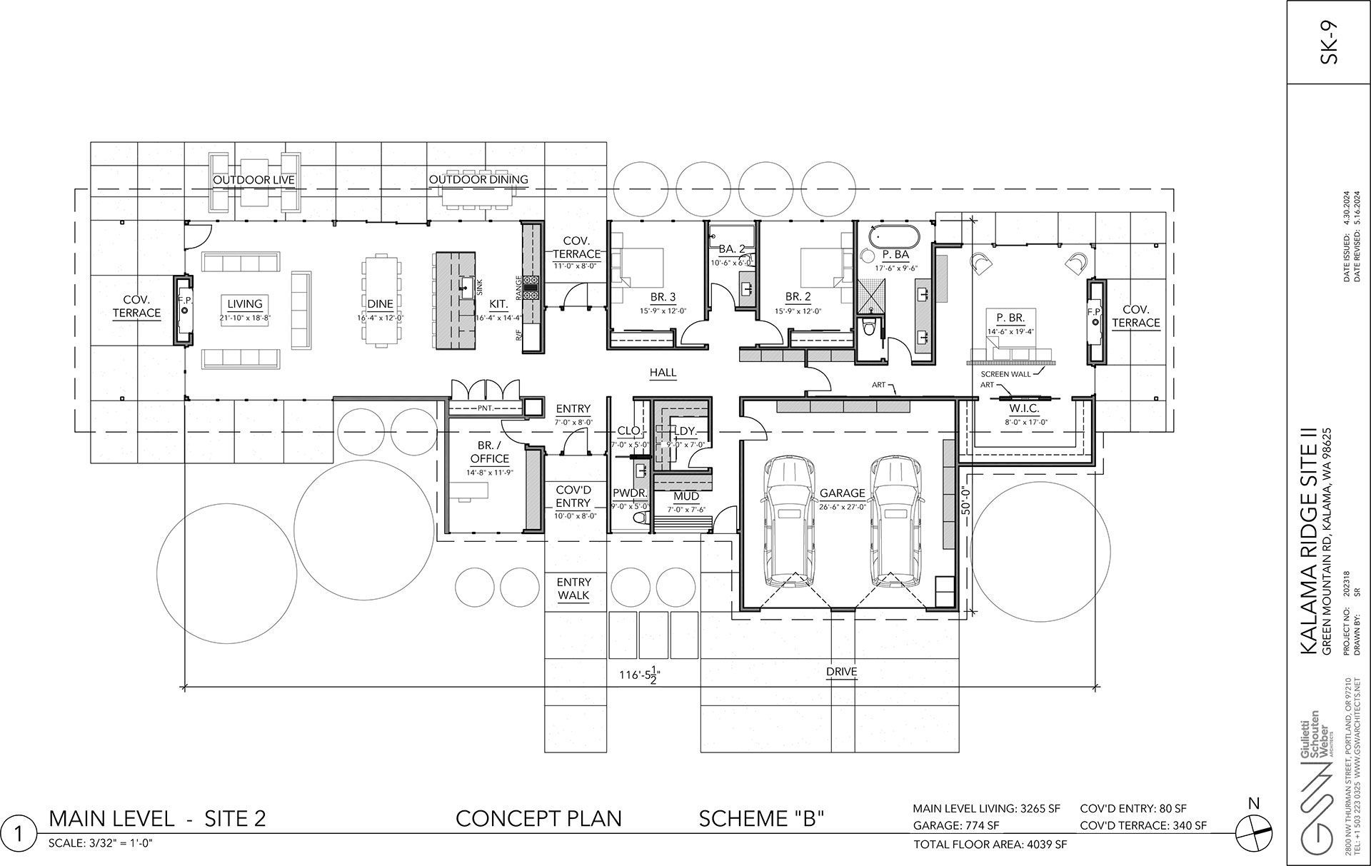
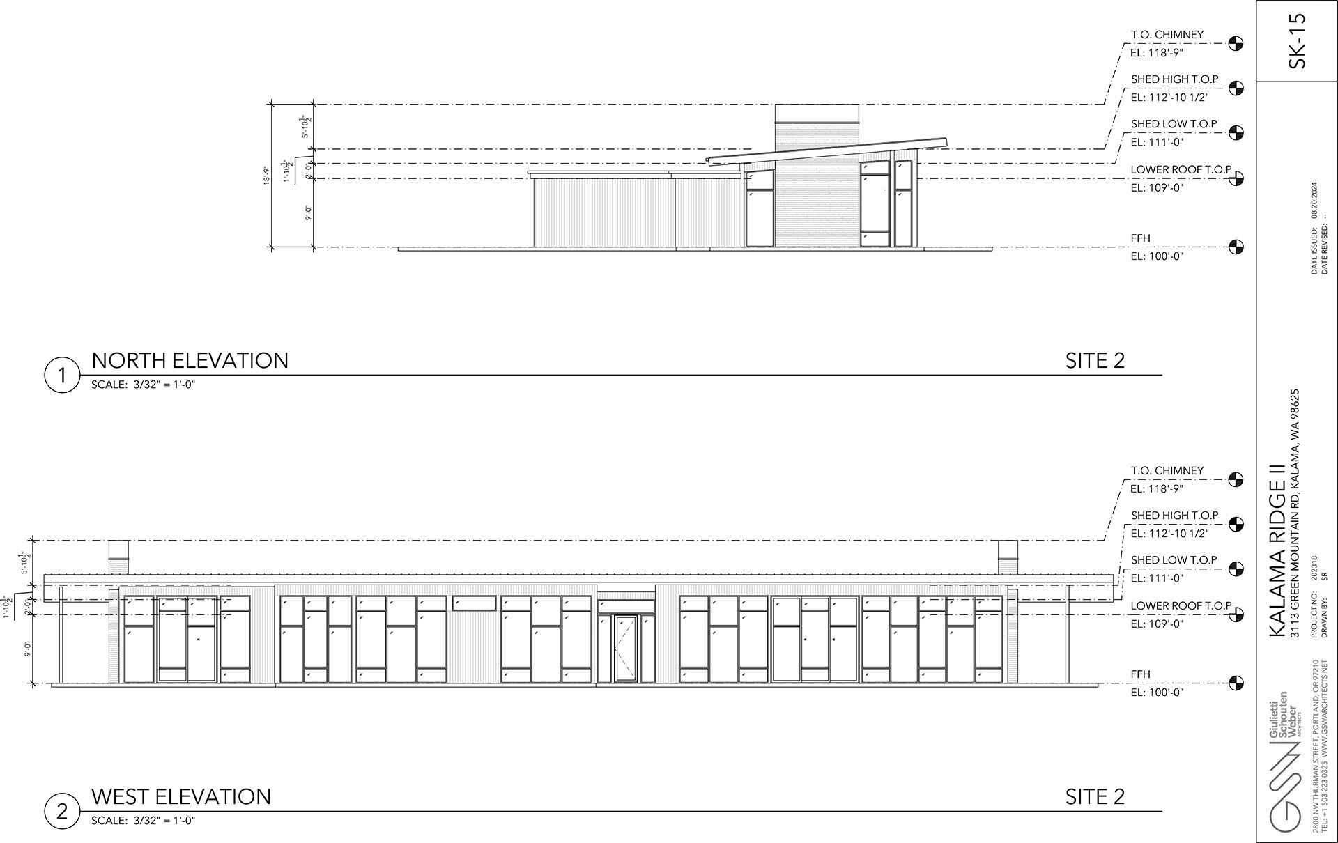
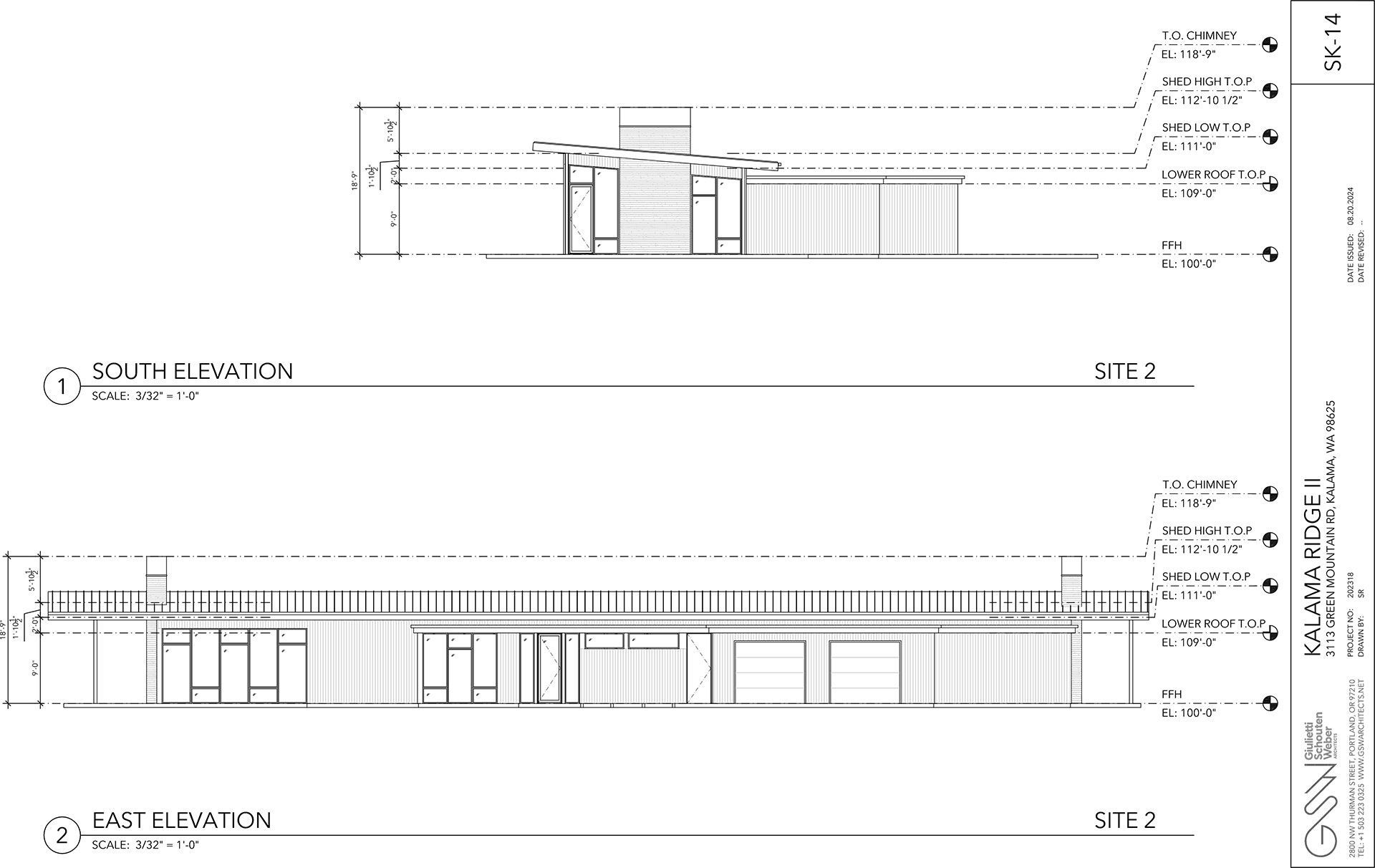
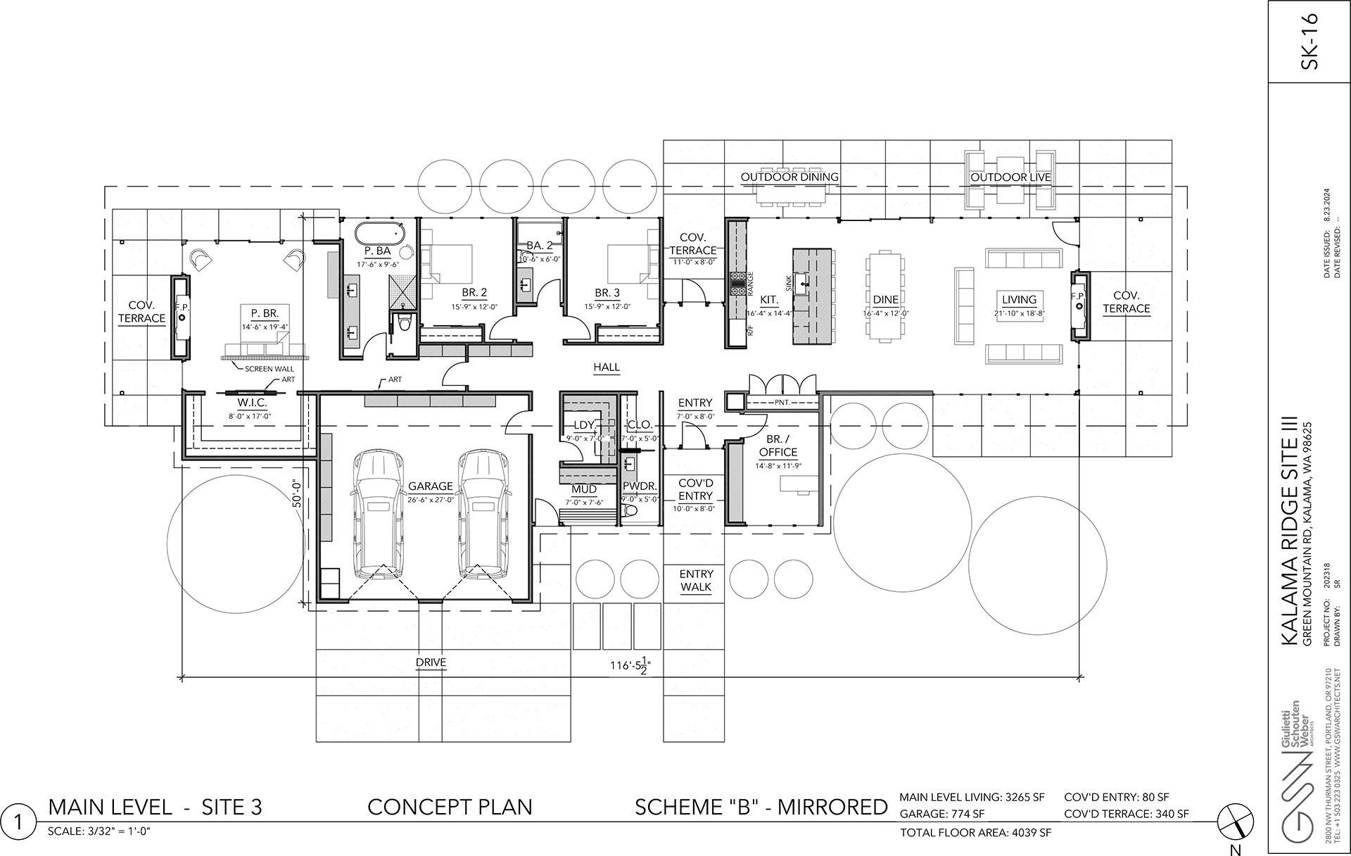
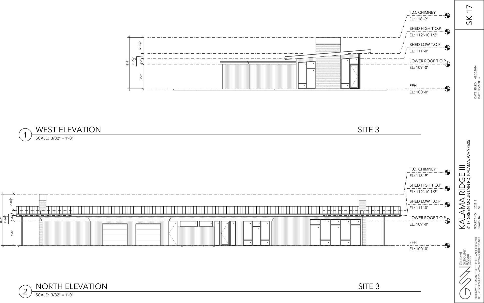
KALAMA RIDGE
Spectacular 5-acre Columbia River view lots nestled in a serene enclave, Kalama Ridge Estates offer an unparalleled opportunity to create and build a custom home in a picturesque setting. This estate spans three lots, with exceptional views of the Columbia River and Valley stretching across the horizon; it’s a canvas of endless possibilities just 30 minutes from Downtown Vancouver, with easy I-5 access. The gated entrance on top of Green Mountain ensures the utmost privacy, providing a secluded sanctuary from the hustle and bustle of daily life. With its buildable terrain, the opportunity awaits you to complete the design process with award-winning Giulietti Schouten Weber Architects. Each custom residence captures the natural beauty of the surroundings, making every sunrise and sunset a masterpiece. Whether it's a contemporary retreat or a timeless estate, Kalama Ridge Estate stands as a pristine foundation for your architectural aspirations. Designed by GSW and being built by the premier custom home builder, IBuild; Site #1 is Pre-Sold ($5.5 million). Site # 2 & Site # 3 are available for $3.75 million each. The combination of privacy, stunning views, and the collaboration between award-winning architects and builders provides a unique chance to create a personal sanctuary that reflects one’s architectural vision. Please contact Patrick Clark for a private viewing.
Portland, OR
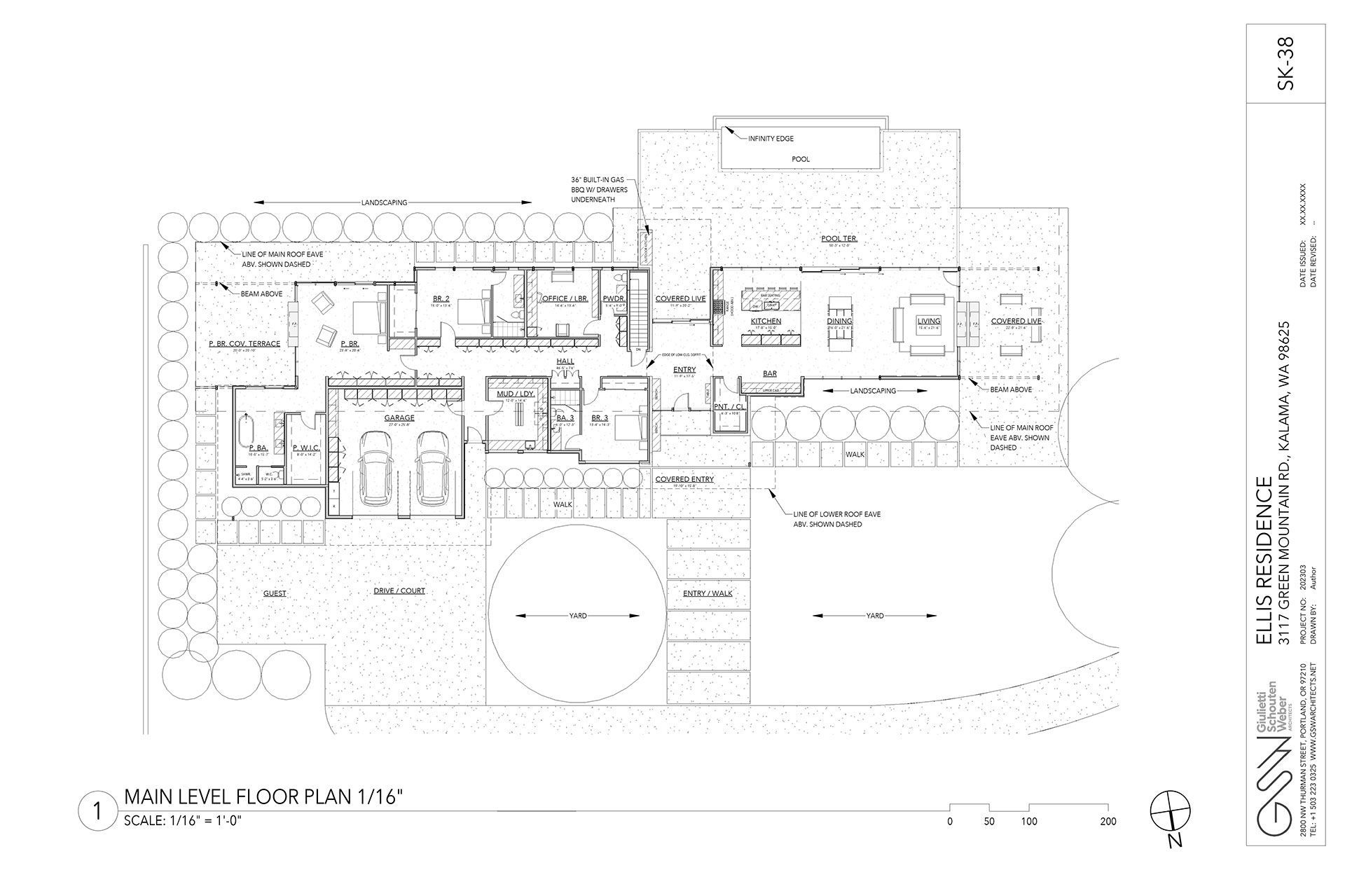
Giulietti Schouten Weber Architects


















































































